/
/
/
ÖLÇÜLENDİRME ÇEŞİTLERİ
ÖLÇÜLENDİRME ÇEŞİTLERİ
  1.YATAY ve DİKEY ÖLÇÜLENDİRME
  Ölçülendirmeler yataya paralel yapılıyorsa yatay ölçülendirme, yataya dik ölçülendirme yapılıyorsa dikey ölçülendirme denir. En çok kullanılan ölçülendirme yöntemleridir. Her türlü geometrik şekillerde kullanılabilir.
  Burada yataydan maksat durgun su yüzeyine paralel, dikeyden maksat dursun su yüzeyine dik olmasıdır. Dikey ölçülendirmelerde yazılar ölçü çizgisinin soluna ve aşağıdan yukarı doğru yazılır.
  Şekil 1’ de yatay ve dikey ölçülendirmeler görülmektedir. Şekil 2’ de açılı doğruların yatay ve dikey ölçülendirilmeleri görülmektedir.

 
       Şekil 1:Yatay ve dikey ölçülendirme           Şekil 2:Açılı doğruların ölçülendirilmesi   

  2.HİZALI ÖLÇÜLENDİRME
  Yatay veya dikey olmayan doğru ve kenarlara paralel yapılan ölçülendirmelere hizalı ölçülendirme denir. Önemli bir ölçülendirme tipidir. Açısı 90° olmayan kenarların Tam Boy’ unu belirten ölçüdür. Ölçü çizgisi soldan sağa doğru yükseliyorsa ölçü yazısı aşağıdan yukarı doğru yazılır. Ölçü çizgisi soldan sağa doğru iniyorsa ölçü yazısı yukarıdan aşağı doğru yazılır. Şekil 3’ de iki adet hizalı ölçülendirme görülmektedir. Şekil 4‘ de karşılaşılabilinecek her türlü hizalı ölçülendirme 8’ gen üzerinde gösterilmiştir. Elde çizim yapanlar bu şekle bakıp ölçülendirmelerini yapabilirler.  Bu hizalamayı AutoCAD gibi çizim programları otomatik yapmaktadır.

 
        Şekil 3:Hizalı ölçülendirmeler                   Şekil 4:Hizali ölçülendirmeler

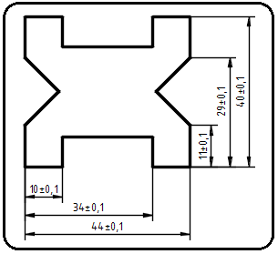
  3.ZİNCİRLEME ÖLÇÜLENDİRME
  Parça üzerindeki kısımların ölçüleri uç uca ilave edilerek verildiyse buna zincirleme ölçülendirme denir. Her ölçünün toleransı var ise hassas parçalarda fazla tavsiye edilmez. Çünkü ölçülerin toleransları üst üste toplanır. Hemen şunu hatırlatalım birinci ölçüler parçadan 10-12 mm uzaktan alınır.
  
Şekil 5’ de tolerans verilmemiş yatay ve dikey zincirleme ölçülendirmeler görülmektedir.Şekil 6’ da tolerans verilmiş yatay ve dikey zincirleme ölçülendirmeler görülmektedir.Toleranslar toplandığı zaman ± 0.3 yapar.

 
      Şekil 5:Zincirleme ölçülendirme           Şekil 6:Toleranslı zincirleme ölçüler

  4.PARALEL ÖLÇÜLENDİRME
  Parça üzerindeki kısımların ölçüleri bir referans noktasına göre verildiyse buna paralel ölçülendirme denir. Ölçüler birbirine paraleldir. Her ölçünün toleransı var ise hassas parçalarda tavsiye edilir. Burada tolerans yığılması olmaz.
  Hemen şunu tekrar hatırlatalım birinci ölçüler parçadan 10-12 mm uzaktan alınır. Az olan diğer paralel ölçüler arasındaki uzaklık 7 mm, çok ise 5 mm alınabilir. Şekil 7’ de tolerans verilmemiş yatay e dikey paralel ölçülendirmeler görülmektedir. Şekil 8’ de tolerans verilmiş yatay ve dikey zincirleme ölçülendirmeler görülmektedir.

 
      Şekil 7:Normal paralel ölçülendirme           Şekil 8:Toleranslı paralel ölçülendirme

  5.AÇILI ÖLÇÜLENDİRME
  Parça üzerindeki açılı yerlerin ölçülendirilmesi Şekil 9’ da görüldüğü gibi yapılır. Açılı ölçülendirmede ölçü çizgisi yay şeklindedir. Her iki ucuna ok yerleştirilir. Ölçü yazıları Hizalı Ölçülendirme  başlığında anlatıldığı gibi yazılır. Ölçü yazısının sağ üst köşesine derece işareti konur. Çizim programları bu hizalamayı ve derece işaretini yazmayı otomatik yapmaktadır.

 
                Şekil 9:Açı ölçülendirmeleri                  Şekil 10:Zincirleme açı ölçüleri

  Şekil 10’ da zincirleme açı ölçülendirilmesi görülmektedir. Şekil 11’ de de paralel açı ölçülendirilmesi görülmektedir. Açı ölçüleri parçanın dışında verilecekse ölçüler parçadan 10-12 mm uzaktan alınır. Paralel açı ölçüleri arasındaki uzaklık 5-7 mm arasında alınabilir.
  Şekil 12’ de tolerans verilmiş açı ölçülendirmeleri görülmektedir. 90˚ derece açıya ± 0.1˚ ondalıklı tolerans verilmiştir. 60˚dereceli açıya 30’ dakika 45” saniye hassaslık verilmiştir. Toleranslı açı ölçülendirilmeleri, ölçüm yapacak ölçü aletleri varsa verilir.

  
          Şekil 10: Paralel açı ölçüleri                   Şekil 11:Toleranslı açı ölçüleri

  6. BAŞLANGIÇ NOKTASINA GÖRE ÖLÇÜLENDİRME
  Belirlenen bir referans köşesine göre tüm ölçüler tek yönlü oklarla belirtilerek ölçülendirilmesine başlangıç noktasına göre ölçülendirme denir. Paralel ölçülerin çok olduğu yerde kullanılarak yerden kazanılır. Ölçülerin birer tarafına ok konur. Ölçü değerleri oku sınırlayan okun, başlangıç noktasına olan ölçüsünü belirler. Büyük değerdeki ölçüler içinde kullanılır. Markalama için çok uygun bir ölçülendirmedir. Şekil 12’ de başlangıç noktasına göre ölçülendirme görülmektedir.  


                                 Şekil 12: Başlangıç noktasına göre ölçülendirme 

  7. KOORDİNAT ÇİZELGELİ ÖLÇÜLENDİRME
  Resmi sadeleştirmek için kullanılan bir metottur. Bir referans köşesi seçilir. Bu köşede X=0, Y=0 değerleri kabul edilir. Yatay ölçüler X ekseni yönünde, düşey ölçüler Y ekseni yönünde verilir. Numaralandırılmış dairelerin merkezi referans köşesine göre X ve Y eksenleri yönündeki uzaklık değerleriyle çap ölçüleri bir çizelgeye yazılır (Şekil 13). Hemen şunu hatırlatalım. Koordinatlı ölçülendirme her zaman tercih edilmez.


                                         Şekil 13:Koordinat çizelgeli ölçülendirme

 

SPONSORLAR