/
/
/
DAİRELERİN ve YAYLARIN İZOMETRİK PERSPEKTİFİ
DAİRELERİN ve YAYLARIN İZOMETRİK PERSPEKTİFİ
  1. İZOMETRİK KÜPTE ELİPSLER
  Daireler belli açılarda döndürülüp eşlenik dik izdüşümleri çizildiğinde elips şeklinde görünür. Elipsin iki ölçüsü vardır. Büyük ölçü dairenin çapına eşittir. Küçük ölçü değişkendir ve açıya göre değişir.
  Dairelerin izometrik görünüşleri Şekil 1’ de gösterildiği gibi izometrik küpün yüzeylerine çizilen elipsler gibidir. Genellikle parçalar üzerindeki elipsler küpün üç yüzeyindeki elipslere benzer. Burada dikkat edilecek husus küpün sağ tarafınamı, sol tarafınamı yoksa üst tarafınamı?  çizileceğidir.

 
       Şekil 1:Küpün yüzeylerine çizilmiş elipsler                        Şekil 2:Daire ve kare

  2. DAİRELERİN İZOMETRİK RESİMLERİ
  Dairelerin izometrik resimlerinin çiziminden pratik olduğu için dört merkezli elips çizim metodu kullanılacaktır. Önce dairelerin dışına çap ölçüsünde kare çizilir (Şekil 2).
  İlk olarak küpün sağ tarafına elips çizmek için aşağıdaki yol takip edilir:
  1. Sağ tarafa (x-z düzlemi) yatayla 30˚açı yapan, kenarlarının uzunluğu 200 olan eşkenar dörtgen şeklindeki izometrik sağ düzlem çizilir (Şekil 3).
  2. A ve B geniş açılı köşelerden karşısındaki kenarlara dik doğrular çizilir (Şekil 4). C ve D merkez noktalarıyla kenarlar üzerinde 1, 2, 3 ve 4 numaralı noktalar bulunur.

    
 Şekil 3:İzometrik sağ düzlem        Şekil 4:Dik kenarlar        Şekil 5:Büyük yaylar          

  3. Pergel A köşesine batırılarak 1 ve 2 numaralı noktalar arasına R1 yarıçaplı bir yay çizilir. Pergel B köşesine batırılarak 3 ve 4 numaralı noktalar arasına R1 yarıçaplı bir yay daha çizilir (Şekil 5).
  4. Pergel noktasına batırılarak 2 ve 3 numaralı noktalar arasına R2 yarıçaplı bir yay çizilir (mavi renkli). Pergel noktasına batırılarak 1 ve 4 numaralı noktalar arasına R2 yarıçaplı bir yay daha çizilir ve elips çizimi tamamlanır (Şekil 6).
  5. Dört merkezli elips çizimi, sağ düzlemde anlatıldığı gibi, sol ve üst düzlemede aynen uygulanır (Şekil 7).

 
 Şekil 6:Küçük yaylar                Şekil 7:Sol düzlem ve üst düzleme elips çizimi
  3.YAYLARIN İZOMETRİK PERSPEKTİFLERİ
  Yayların izometrik resimlerinin çizimi, dairelerin izometrik resimlerin çiziminde kullanılan metot kullanılır. Şekil 8’ de görülen ve yarıçapı 60 olan yayın izometrik resmini çizmek için aşağıdaki yol takip edilir:
  1. Yayın çizileceği köşedeki izometrik doğrular çizilir. A köşesinden X ve Y eksenleri yönünde yarıçap ölçüsü 60 alınır, 1 ve 2 noktalar işaretlenir (Şekil 9).

 
             Şekil 8:Yay                       Şekil 9:Doğrular ve yarıçap ölçüleri
  2. AX, AY doğruları üzerindeki 1 ve 2 numaralı noktalardan  dik doğrular çizilir. Doğruların kesim yeri yayın merkezidir (Şekil 10).
  3. Pergel merkeze batırılır ve 1-2 noktaları arasındaki yay çizilir (Şekil 11).
  Not: İzometrik daire ve yaylar çizilip ölçüldüğünde gerçek ölçü olmayabilir. Bu durum yanlışlık değildir ve sizi yanıltmasın. Ölçülendirmede siz gerçek ölçüyü yazarsınız.

 
 Şekil 10:Yayın merkezini bulma                         Şekil 11:İzometrik yay
  4. Şekil 12’ de köşelerde çizilmiş izometrik yaylar görülmektedir.

                  Şekil 12:Üst ve sol yan düzlemlerde izometrik yaylar

  4. DÜZGÜN OLMAYAN YAYLARIN İZOMETRİK PERSPEKTİFLERİ
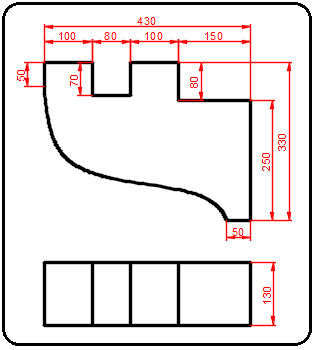
  Pergelle çizilen yayların izometrik resimlerinin çizimini daha önceki konularda anlattık. Şimdi de düzgün olmayan yayların (spline) izometrik resimlerinin çiziminin yapılmasını anlatalım. Düzgün olmayan yayların (Şekil 13) perspektifini çizmek için aşağıdaki işlem sırası uygulanır:
  1. Düzgün olmayan yay kısımlara ayrılır ve ölçülendirilir (Şekil 14).

 
      Şekil 13:Düzgün olmayan yaylı parça                          Şekil 14:Bölüntüler

  2. Ön görünüşün izometrik resmini yay yokmuş gibi sol düzleme çizelim (Şekil 15). Eğrinin bölüntü çizgileri ölçüsünde tabana paralel çizilir (Şekil 16).

 
     Şekil 15:Ön görünüş             Şekil 16:Bölüntü çizgileri

  3. Bölüntü çizgilerinin uç kısımları yay cetveliyle (pistole) üçer üçer birleştirilerek izometrik görünüşü tamamlanır (Şekil 17). Sağ tarafa 130 değerindeki genişlik değeri çizilir izometrik perspektif tamamlanır (Şekil 18).
  Not: Perspektif çizimlerinde görünmeyen kenarlar tamamen silinir. Yarım görünen kenarların da görünmeyen kısımları silinir.

 
Şekil 17:Eğrinin izometrik resmi     Şekil 18:İzometrik perspektif

  5. KONİNİN İZOMETRİK PERSPEKTİFİ
  Koni, tabanı daire olan geometrik bir şekildir. Ön görünüş üçgen, üst görünüş daire şeklindedir (Şekil 19). Koninin izometrik perspektifini çizmek için aşağıdaki işlem sırası uygulanır:
  1. İzometrik üst düzleme kenar uzunlukları koninin taban çapına eşit eşkenar dörtgen çizilir. Daha önce anlatıldığı gibi eşkenar dörtgenin içine 4 merkezli elips çizilir (Şekil 20).

 
     Şekil 19:Görünüşler               Şekil 20:Dört merkezli elips çizimi

  2. Elipsin yatay eksenleri çizilir. Eksenlerin kesim yerinden Z ekseni yönünde 180 mm uzunluğunda dik bir eksen çizilir (Şekil 21).
  3. Yan ayrıtlar için ekseninin üst noktasından taban elipsine teğet doğrular çizilir. Elipsin arkada kalan kısım gerekiyorsa kesik çizgiyle çizilir ve şekil tamamlanır (Şekil 22).

  
    Şekil 21:Yükseklik ekseni            Şekil 22:İzometrik koni

SPONSORLAR