/
/
/
DÜZ KENARLI PARÇALARIN İZOMETRİK PERSPEKTİFLERİ-1
DÜZ KENARLI PARÇALARIN İZOMETRİK PERSPEKTİFLERİ-1
  1.TANITIM
  İzometrik; kelime anlamı eşit ölçüde demektir. İzometrik görünüm elde etmek için bir prizma dik esen etrafında 45˚döndürülür. Daha sonra prizma öne doğru 35˚16’ eğilir. Dik izdüşüm kurallarına göre çizim yapıldığında yatay kenarların yatay düzlemle 30˚ açı yaptığı görülür. Dik kenarlar da yatayla 90˚ açı yapar.
  Bütün kenarlarda aynı oranda kısalma meydana gelir ve kenarların boyları ana boyutun %82’ si kadardır (Şekil 1). Çizimlerde hiç kısalma yokmuş gibi tam ölçü alınır. Bizim tavsiyemiz de bu yöndedir. Perspektif resimler gerçek ölçülerle ölçülendirilerek parça üretilebilir (Şekil 2).

 
  Şekil 1:İzometrik açılar ve ölçü oranları         Şekil 2:İzometrik açılar ve ölçü oranları

  2.İZOMETRİK PERSPEKTİFTE EKSENLER ve ÇİZİM DÜZLEMLERİ
  İzometrik çizimlerde parçayı en iyi ifade edebilmek için Şekil 3’ de görüldüğü değişik eksen takımları kullanılır. Bunlardan en çok a tipi eksen takımı kullanılır. Diğerleri ihtiyaca göre kullanılır.


                                            Şekil 3:İzometrik eksen takımları

  İzometrik perspektif çizimlerinde üç adet çizim düzlemi kullanılır. Bunlar sağ, sol ve üst çizim düzlemlerdir. Şekil 4’ de çizim düzlemleri görülmektedir. İzometrik perspektif çiziminde  30˚- 60˚ gönyeler kullanılır (Şekil 5).

 
               Şekil 4:İzometrik çizim düzlemleri                       Şekil 5:Gönyelerin yerleşimi

  3.İZOMETRİK PERSPEKTİF ÇİZİMİ
  Birinci örnek olarak Şekil 6’ da görünüşleri verilmiş düz kenarlı parçanın izometrik perspektifini çizmek için aşağıdaki yol takip edilir:

 
                         Şekil 6:Görünüşler                              Şekil 7:İzometrik eksenler                                  

  1. Önce 30˚- 60˚ gönye ile yatayla 30 derece açı yapan izometrik eksenler çizilir (Şekil 7). Ön görünüş sağ veya sol düzlemden birine gerçek ölçülerinde çizilir. Burada sağ düzlem tercih edilmiştir. Uzunluğu temsil eden yatay kenarlar X esenine paralel, yüksekliği temsil eden dik kenarlar Z eksenine paralel çizilirler (Şekil 8).

 
          Şekil 8:İzometrik ön görünüş                         Şekil 9:İzometrik yan görünüş

  2. Kural gereği yan görünüş sol düzleme çizilir. Genişliği temsil eden yatay kenarlar Y esenine paralel, yüksekliği temsil eden dik kenarlar Z eksenine paralel çizilirler (Şekil 9).
  3. Diğer kenarlar aynı kurallara göre X, Y ve Z eksenlerine paralel çizilerek şekil tamamlanır. Fazlalıklar silinir ve parça ölçülendirilir (Şekil 10).

  
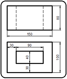
            Şekil 10:İzometrik resim                       Şekil 11:Görünüşler
  İkinci örnek olarak Şekil 11’ de ön ve üst görünüşleri verilmiş dikdörtgen delikli düz kenarlı parçanın izometrik perspektifini çizmek için aşağıdaki sıra takip edilir:
  1. Önce 30˚- 60˚ gönye ile yatayla 30 derece açı yapan izometrik eksenler çizilir (Şekil 12). Üst görünüşün kenarları X ve Y esenine paralel olarak çizilir. Uzun kenarı X eksenine paralel  çizelim (Şekil 13).

 
           Şekil 12:İzometrik eksenler                        Şekil 13:İzometrik üst görünüş
  2. Üst görünüşün köşelerinden yükseklik kadar dik doğrular çizilir. Dik kenarların uçları doğrularla birleştirilir (Şekil 14). Görünen kenarlar kalınlaştırılır, görünmeyen kenarlar kesik çizgiyle çizilir (Şekil 15).

  
               Şekil 14:Dik kenarlar                       Şekil 15:Görünmeyen kenarlar

  3. Bazen görünmeyen kenarlar şekli karıştırabilir. Gerekirse bu çizgiler silinir. Şekil imalatta kullanılacaksa ölçülendirilir (Şekil 16).

 
        Şekil 16:Perspektif ve ölçüleri                              Şekil 17:Görünüşler
  4.İZOMETRİK OLMAYAN KENARLARIN PERSPEKTİFİNİN ÇİZİMİ
  Bir kenar X, Y ve Z eksenlerinden birine paralel değilse o kenara izometrik olmayan kenar denir. Örnek olarak Şekil 17’ de görünüşleri verilmiş parçanın kırmızı renkli kenarları izometrik olmayan kenarlardır. İzometrik olmayan kenarlar gerçek uzunlukta olmazlar. Bu parçanın perspektifini çizmek için aşağıdaki sıra takip edilir:
  1. Parçamız dikdörtgen taban ve üstündeki çıkıntı olmak üzere iki kısımdan meydana gelmektedir. Taban dikdörtgenler prizmasıdır. Önce 30˚- 60˚ gönye ile yatayla 30 derece açı yapan izometrik eksenler çizilir (Şekil 18).
  2. Tabanın ön görünüşünü sol düzleme, tabanın yan görünüşünü sağ düzleme çizerek çizime başlayalım (Şekil 19).

 
            Şekil 18:İzometrik eksenler                              Şekil 19:Ön ve yan görünüş

  3. Tabanın üst görünüşünün diğer kenarlarını X ve Y eksenlerine paralel çizerek tamamlayalım (Şekil 20). Çıkıntının üst görünüşünün kenarları, tabanın üst tarafına verilen ölçülerde A ve B kenarlarına paralel olarak çizilir (Şekil 21).

 
              Şekil 20:Tabanın çizimi                          Şekil 21:Çıkıntının üst görünüşü

  4.Çıkıntının üst görünüşün köşelerinden 60 ve 30 ölçülerindeki dik kenarlar çizilir (Şekil 22). Dik kenarların uçları doğrularla birleştirilir. Görünmeyen kenarlar silinir ve şekil tamamlanır (Şekil 23).

  
              Şekil 22:Dik kenarlar                         Şekil 23:İzometrik perspektif

SPONSORLAR