modu açık olmalıdır.

komutuyla bölge haline getirilir. 6 adet bölge oluşur (Şekil 2).
görünüm çeşidi seçilerek ekran izometrik konuma getirilir (Şekil 3). 

komutuyla önce tüm bölgelere 5 cm kalınlık verelim (Şekil 4). Objeler kalınlaştırıldığında alttaki çizgiler görünmeyebilir.
komutuyla 1 numaralı kısımdan 2, 3, 4, 5, 6 numaralı kısımları çıkaralım. Görüntü stilinden Conceptual seçilir (Şekil 5).
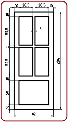
komutuyla 3x82x204 ölçülerinde bir kutu çizelim (Şekil 6).
(Uzunluk seçeneği)
(Uzunluk-X ekseni yönünde)
(Genişlik-Y ekseni yönünde)
(Yükseklikk-Z ekseni yönünde)

tuşuna basılır.
(Komuta devam etmek için)
komutuyla birleştirilir. Çukurluğu Zoom yaparak rahat görebiliriz (Şekil 9). 


komutuyla alan-yüzey haline getirilir. Alan, görüntü stilinden Conceptual seçilerek gri renge boyanmış halde görünür (Şekil 12).

komutunu uygulamak için aşağıdaki sıra takip edilir.
tuşuna basılır.
tuşuna basılır.




tuşuna basılır.
(Komuta devam etmek için)

